Zaandijk – Parkstraat 21 - De Bree Makelaardij

Parkstraat 21, 1544 AM
Zaandijk

vraagprijs

€ 375.000,- k.k.

Contact Deel deze woning
Sfeervolle helft van dubbel woonhuis in het historische Zaandijk met herstelde fundering (2021) en zonnige achtertuin op het zuiden.

Een plek waar je niet alleen woont, maar je je ook echt thuis voelt. In een rustige straat in het historische Oud-Zaandijk staat dit charmante woonhuis met een prettige sfeer en authentieke details.

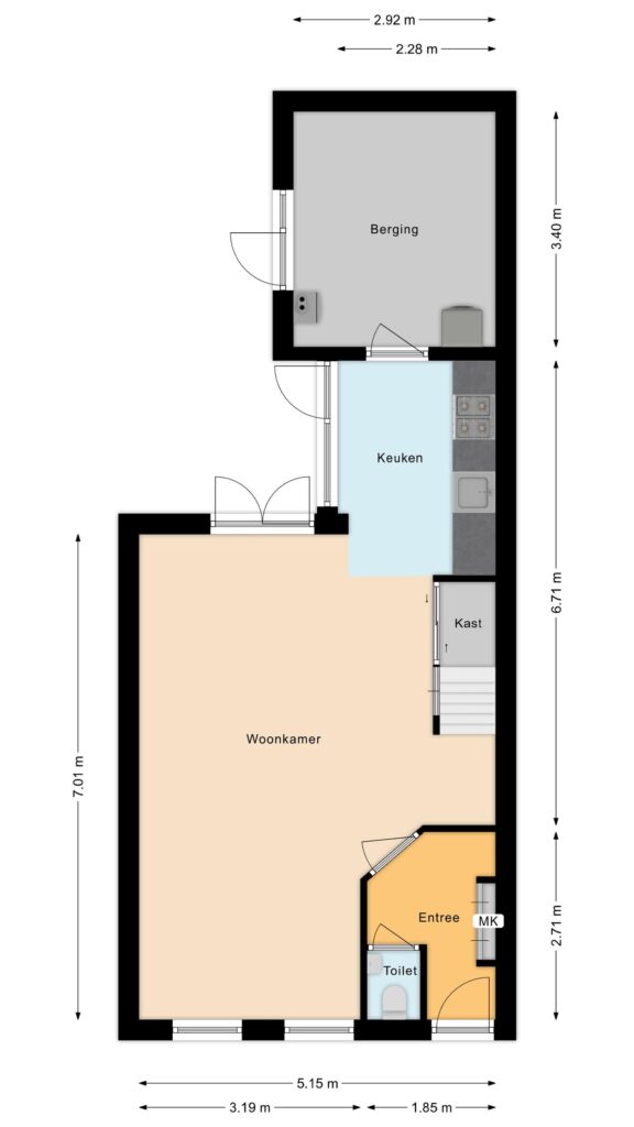
De woning beschikt over een lichte en royale doorzonwoonkamer waar het daglicht door de vele ramen mooi naar binnen valt en zorgt voor een warme en uitnodigende leefruimte. De keuken bevindt zich in de uitbouw aan de achterzijde en is praktisch ingericht met onder andere een gaskookplaat, afzuigkap, oven en vaatwasser. Aansluitend ligt de bijkeuken met aansluitingen voor wasmachine en droger en de opstelling van de cv-ketel (2024).

Terrasdeuren openen naar de op het zuiden gelegen tuin, een fijne plek om van de zon en de rust te genieten. De tuin beschikt daarnaast over een handige achterom.

Op de eerste verdieping bevinden zich twee goed bemeten slaapkamers, bergruimte, een separaat tweede toilet en een nette badkamer met ligbad, douchehoek en wastafel.

De woning is gelegen in het historische Oud-Zaandijk, een geliefde woonomgeving met een dorps karakter. Winkels, scholen, sportvoorzieningen en het NS-station liggen op loopafstand. Ook zijn de uitvalswegen richting onder andere Amsterdam goed bereikbaar. De Zaanse Schans ligt bovendien op slechts enkele minuten afstand.

Bijzonderheden
- fundering hersteld in 2021;
- karakteristiek;
- Zo te betrekken;
- cv-ketel uit 2024;
- gebruiksoppervlakte ca. 86 m² (inclusief bijkeuken/berging);
- perceel 99 m² eigen grond;
- achtertuin op het zuiden met achterom;
- aanvaarding kan op korte termijn.
Type Woonhuis
Bouwjaar 1910
Status Verkocht onder voorbehoud

Kenmerken

OVERDRACHT
Status Verkocht onder voorbehoud
Vraagprijs € 375.000,- k.k.
Aanvaarding Direct
BOUWVORM
Soort object Woonhuis
Soort woning Eengezinswoning
Type woning Twee onder één kapwoning
Kwaliteit woning
Bouwjaar 1910
Bouwvorm Bestaande bouw
Ligging Aan rustige weg, In woonwijk
INDELING
Woonoppervlakte 76 m2
Perceeloppervlakte 99 m2
Gebouwgebonden buitenruimte 0 m2
Externe bergruimte 0 m2
Inhoud 316 m3
Aantal kamers 3
Aantal slaapkamers 2
Aantal woonlagen
ENERGIE
Energieklasse D
Energie einddatum 24 november 2035
Isolatie Dakisolatie, Vloerisolatie, Grotendeels dubbelglas
Warmwater CV ketel
Verwarming CV ketel
C.V.-Ketel Intergas (Gas Combiketel uit 2024, Eigendom)
BUITENRUIMTE
Tuin Achtertuin
Hoofdtuin Achtertuin
Oppervlakte hoofdtuin 18 m2
Ligging hoofdtuin Zuid
Achterom Nee
Kwaliteit tuin Normaal
BERGRUIMTE
Schuur / Berging Aangebouwd steen
Voorzieningen Voorzien van elektra, Voorzien van water
PARKEERGELEGENHEID
Parkeerfaciliteiten Openbaar parkeren
DAK
Soort dak Samengesteld dak
OVERIG
Permanente bewoning Ja
Onderhoud binnen Goed
Onderhoud buiten Goed
Huidig gebruik Woonruimte
Huidige bestemming Woonruimte
VOORZIENINGEN
Voorzieningen TV kabel, Natuurlijke ventilatie
KADASTRALE GEGEVENS
Gemeente Zaandijk
Sectie A
Parceelnummer 2518
Oppervlakte 99 m2
Eigendomssituatie Volle eigendom

Beschrijving

Sfeervolle helft van dubbel woonhuis in het historische Zaandijk met herstelde fundering (2021) en zonnige achtertuin op het zuiden.

Een plek waar je niet alleen woont, maar je je ook echt thuis voelt. In een rustige straat in het historische Oud-Zaandijk staat dit charmante woonhuis met een prettige sfeer en authentieke details.

De woning beschikt over een lichte en royale doorzonwoonkamer waar het daglicht door de vele ramen mooi naar binnen valt en zorgt voor een warme en uitnodigende leefruimte. De keuken bevindt zich in de uitbouw aan de achterzijde en is praktisch ingericht met onder andere een gaskookplaat, afzuigkap, oven en vaatwasser. Aansluitend ligt de bijkeuken met aansluitingen voor wasmachine en droger en de opstelling van de cv-ketel (2024).

Terrasdeuren openen naar de op het zuiden gelegen tuin, een fijne plek om van de zon en de rust te genieten. De tuin beschikt daarnaast over een handige achterom.

Op de eerste verdieping bevinden zich twee goed bemeten slaapkamers, bergruimte, een separaat tweede toilet en een nette badkamer met ligbad, douchehoek en wastafel.

De woning is gelegen in het historische Oud-Zaandijk, een geliefde woonomgeving met een dorps karakter. Winkels, scholen, sportvoorzieningen en het NS-station liggen op loopafstand. Ook zijn de uitvalswegen richting onder andere Amsterdam goed bereikbaar. De Zaanse Schans ligt bovendien op slechts enkele minuten afstand.

Bijzonderheden
– fundering hersteld in 2021;
– karakteristiek;
– Zo te betrekken;
– cv-ketel uit 2024;
– gebruiksoppervlakte ca. 86 m² (inclusief bijkeuken/berging);
– perceel 99 m² eigen grond;
– achtertuin op het zuiden met achterom;
– aanvaarding kan op korte termijn.

Plattegronden

Panorama afbeelding 0

Panorama afbeelding 1

Panorama afbeelding 2

Panorama afbeelding 3

Panorama afbeelding 4

Panorama afbeelding 5

Panorama afbeelding 6

Panorama afbeelding 7

Panorama afbeelding 8

Video

Googlemap

Streetview